201 West 72nd Street Upper West Side Apartment For Sale

  • 1 Bedroom
  • 2 Bathrooms
  • Balcony
  • Terrace
  • $1,395,000

Local Law 11 finished and scaffolding are down.

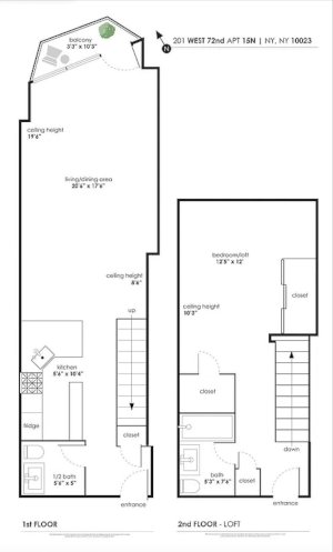
Stunning Renovated Duplex Loft in the Heart of the Upper West Side

Positioned high above the Upper West Side on the 15th and 16th floors of the esteemed Alexandria Condominium, this beautifully reimagined one-bedroom, one-and-a-half-bathroom duplex offers a rare blend of loft-like scale, contemporary design, and private outdoor living.

A dramatic double-height living space with soaring 20-foot ceilings sets the tone upon entry, complemented by polished concrete floors and expansive floor-to-ceiling windows that frame sweeping skyline views and fill the home with natural light throughout the day. A sculptural staircase, thoughtfully designed with custom built-in storage-anchors the space while enhancing both form and function.

The open chefs kitchen is seamlessly integrated into the living and dining areas, featuring generous counter space, custom cabinetry, and premium stainless steel appliances, perfectly suited for both intimate evenings and elevated entertaining.

A private terrace extends the living experience outdoors, offering a serene vantage point over the city-ideal for morning coffee or evening unwinding above the skyline.

The upper level is dedicated to a gracious primary suite, complete with custom closets, a well-appointed full bathroom, and 10-foot ceilings that maintain the homes sense of volume and openness. Additional features include a stylish powder room on the main level, upgraded HVAC, and thoughtfully designed storage throughout.

The Alexandria is a full-service, white-glove condominium known for its exceptional staff and comprehensive amenities, including a 24-hour doorman and concierge, a state-of-the-art health club with sauna and jacuzzi, a saltwater pool, landscaped courtyard, roof deck, and childrens playroom.

Ideally located at 72nd Street and Broadway, residents enjoy immediate access to express transportation, Central Park, Lincoln Center, Columbus Circle, and the finest dining and shopping the Upper West Side has to offer.

A truly distinctive residence offering scale, light, and design in one of Manhattans most established full-service condominiums.

  • Ownership Type: Condominium
  • Pet Policy: Pets Allowed
  • Features: Balcony, Terrace, Washer Dryer

Listing courtesy of Living Real Estate Group RLS REBNY


wide photo
tall photo
wide photo
wide photo
wide photo
wide photo
tall photo
tall photo
tall photo
tall photo
Request More Details
X

Thank You!
Your message was sent.
A broker will contact you soon.

Subject
Name
Phone
Message

The Building

  • Building Type: High-Rise
  • Built: 1991
  • Elevator: Yes
  • Doorman: Yes
  • Features: Garden, Health Club, Laundry Room, Laundry Room On Every Floor, Lounge, Maid Service, Nursery, Party Room, Pets Allowed, Pool, Private Storage, Roof Deck, Sauna, Steam Room
exterior photo

The Neighborhood

201 West 72nd Street
Neighborhood resources are provided by Google.


This information is not verified for authenticity or accuracy and is not guaranteed and may not reflect all real estate activity in the market. IDX information is provided exclusively for consumers’ personal, non- commercial use and that it may not be used for any purpose other than to identify prospective properties consumers may be interested in purchasing.


Filter Listings

RLS IDX Data display by
Prime Manhattan Residential

Contact An Agent

Thank You!
Your message was sent.
A broker will contact you soon.

Name
Phone
Message

Terms of Use

By submitting a query or otherwise reviewing the information on this website concerning real property listings (the “Data”) you agree to the following: (i) you will not access the Data through automated or high-volume means; and (ii) you will not “scrape,” harvest or otherwise copy the Data except pursuant to your personal non- commercial use of the Data solely to identify real property listings that you may be interested in investigating further.